Separate behandlingsrum ved mistanke om Covid-19

ELA Container Corona-virus-testcenter

Er det nødvendigt med mere plads til at teste patienter for Corona-virus? Så kontakt os. ELA Container kan stille mobile rumløsninger til rådighed, hvor borgerne kan testes for Corona-virus. Vi har allerede opstillet flere Corona-testcentre i nærområdet, og vi tilbyder vores modulære rumløsninger til alle myndigheder og sundhedsinstitutioner. De kan opstilles hvor som helst, hurtigt og fleksibelt.

Fordele
Separat personaleindgang
Bevægelsessensor til kontaktløs lysaktivering
Drejebom
Hurtig levering og klar til brug
Kan opstilles hvor som helst
ELA moduler til fortrolige samtaler

ELA moduler til fortrolige samtaler

Konsultationsrummet hos lægen skal garantere beskyttelse og fortrolighed. Ellers kan patient og læge ikke have en åben og ærlig samtale. ELA Container vægter derfor en indbydende atmosfære i konsultationsrummene i vores mobile lægeklinikker højt.

Flere detaljer
ELAs modulløsninger indrettet som Corona-virus-testcenter

ELAs modulløsninger indrettet som Corona-virus-testcenter

På baggrund af vores hidtidige erfaringer med levering af Corona-testcentre foreslår vi en rumløsning bestående af to ELA premium-moduler. Her er der adgang til alle nødvendige faciliteter med et samlet areal på 36 m², lige fra forskellige typer behandlingsrum til hygiejneudstyr som toiletter og håndvaske samt et komplet klimaanlæg.

Flere detaljer
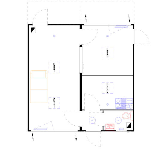
Praktisk grundplan for testcenter

Praktisk grundplan for testcenter

Grundplanen i vaccinemodulet er designet til at være både funktionel og praktisk. Modulløsningen omfatter i alt tre rum. Undersøgelsesrummet har en egen ind- og udgang gennem ekstra døre med hver sit vindfang. Et arbejdsrum til sundhedspersonalet støder op til undersøgelsesrummet med en dør imellem. Patienterne skal registreres ved en ekstern skranke, før de bliver testet. Alle rum kan tilgås uafhængigt af hinanden.

🔎 Se grundplan

Kontakt os for yderligere oplysninger. Vi kommer gerne med gode råd og udarbejder også gerne et specifikt tilbud. 

 

Send en forespørgsel nu

 

Download datablad 

Telefon
Lokale salgskonsulenter